est    eng
   1   2   3   4   5

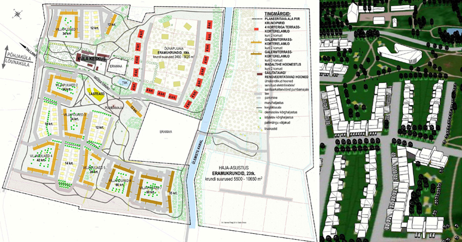
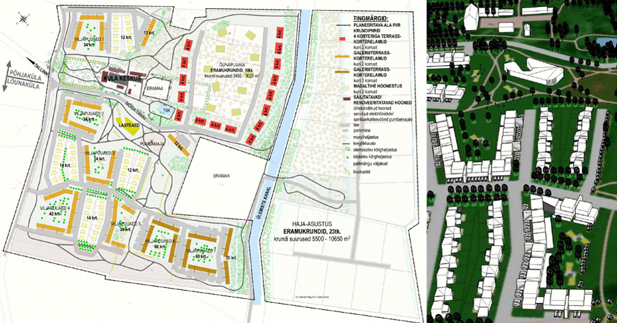
LOW EMISSION LIVING AREA PROPOSAL `MANOR GARDENS` IN RAE BOROUGH, HARJUMAA. 2007.
click here for related info: www.www.smartplanet.com/business/blog/smart-takes/debating-smart-growth-is-urban-or-suburban-living-better/4450/
A natural, energy- and water saving `sustainable` neighbourhood for 500 families, on 2 sides of the Ülemiste canal, mostly on fields. A sympatheitc environment is created by carefully zoning dwellings into separate groupings around shared green areas, combined with a low scale (mostly 1and 2 storey, up to 3) approach. Feeling of place: Every place which has a special characteristic, whether natural, historic or otherwise unique (i.e. the manor houses, `cult stones`, pond, canal, landsape, the old orchards) is respectfully brought forth. 8 building types: 1)dispersed detached homes. 2)`Apple Orchard` detached homes, properties 2490-3025m². 3)Terrace-apartments with 4 units. 4+5)Gallery/Terrace apartments, til 2 storeys, til 3 storeys. 6)Low-density rowhouses. 7)Restoration homes (``Village Centre``). 8) Kindergarten. L.Tork, M. Soonets.

public planning office + apartment residence interiors + design info partners
lembit@tork.ee
+372 50 94 311